Кухонная вытяжка MAUNFELD Ancona PlusA Isla 90 нержавеющая сталь\прозрачное стекло в Санкт-Петербурге
Характеристики
Особенности
Т-образный дизайн распространен среди производителей премиальных и бюджетных вытяжек. Его легко реализовать, такая модель впишется в большинство кухонь и гарантировано покроет все рабочее пространство над варочной панелью. Часто выполняется из нержавеющей стали и используется в лофтах, также есть варианты с фронтальной панелью из стекла.
Такие вытяжки обычно по умолчанию рассчитаны на подключение к воздуховоду, но при этом у пользователя есть возможность дополнительно установить угольные фильтры и перевести ее в режим рециркуляции. Просто так переключиться с одного на другой способ работы нельзя, потому что меняется тип подключения.
Описание
Кухонная вытяжка MAUNFELD Ancona PlusA Isla 90 — эффектная Т-образная модель увеличенной ширины. Ее габариты составляют 117x90x50 сантиметров. Сдержанный дизайн в цвете нержавеющей стали делает модель подходящей для любой кухни.
Прибор отлично подойдет и для изолированной кухни, и для квартиры-студии до 40 кв.м, поскольку рассчитан на очистку 1050 кубометров воздуха в час. Класс энергопотребления B обеспечивает разумный расход электричества. Вытяжка тихая, всего 52 дБ. Управление электромеханическое, скорости переключаются с помощью нескольких кнопок. Есть яркая подсветка рабочей зоны.
Общие характеристики

Тип вытяжки — один из определяющих факторов при выборе модели для кухни.
Купольные модели выпускаются с креплением к стене. Благодаря своей конструкции они отличаются увеличенной площадью всасывания, способны вместить большой вентилятор и сразу несколько фильтров. Такие приборы устанавливают, как правило, в кухнях достаточно большой площади. Одним из видов купольных вытяжек считаются каминные, которые из-за своей формы, воспроизводящей традиционный камин, устанавливаются в кухнях классического стиля.
Угловые вытяжки — разновидность купольных. В соответствии со своим названием эти устройства крепятся над угловыми варочными поверхностями, удачно занимая свободное место в углу помещения.
Островные модели устанавливаются на потолок над кухонным островом, которым часто оснащаются просторные кухни-столовые в современных квартирах. Подключение таких приборов к вентиляции требует больших трудозатрат, так что часть из них работает только в режиме рециркуляции. Для работы в режиме отвода воздуховод должен располагаться вертикально, что позволяет создавать оригинальные конструкции, которые станут заметной деталью в любой кухне.
В небольших помещениях можно использовать несколько типов вытяжек. Прежде всего это экономичные, незаметные и недорогие устройства, встраиваемые в подвесной шкаф или в потолок. Нередко они оснащаются выдвижными панелями, увеличивающими площадь всасывания. Еще один тип встраиваемых устройств — со встройкой в столешницу рядом с варочной панелью. Эти производительные приборы хороши тем, что в нерабочем состоянии полностью скрыты от глаз.
Наклонные модели — еще один вариант для небольшой кухни. Они размещаются на стене, но при высокой производительности не требуют много места. Их особенностью считается пониженный уровень шума и управление при помощи пульта ДУ. Эта категория вытяжек отличается большим разнообразием размеров, дизайна, цветов.
Т-образные модели, которые не имеют традиционного купола, изготавливаются из современных материалов — ударопрочного стекла, стали, алюминия и устанавливаются обычно в кухнях современного стиля.
Потолочные подвесные устройства внешне больше напоминают люстры и другие светильники, но успешно справляются с очисткой воздуха. Они оснащены разнообразными инновационными технологиями — управлением с мобильных устройств, автоматическим отключением, подсветкой с регулировкой яркости.

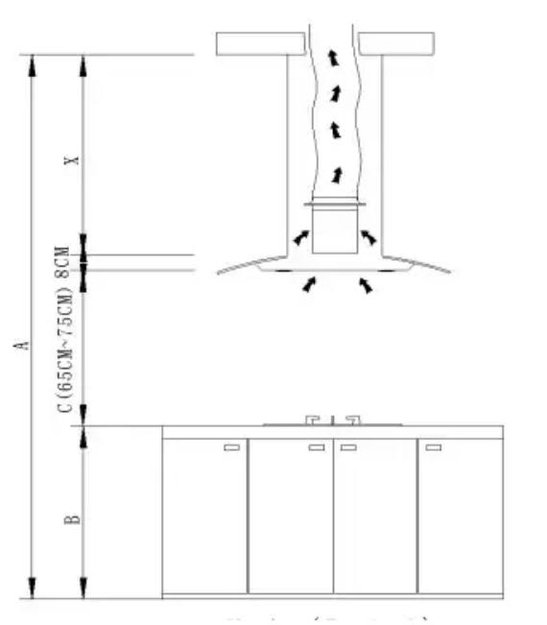
Высота вытяжки подбирается исходя из габаритов кухонной мебели и высоты потолков в помещении. При выборе прежде всего необходимо предусмотреть, чтобы расстояние от нижнего края вытяжки до варочной панели соответствовало нормам безопасности с одной стороны и обеспечивало качественную очистку воздуха с другой. Если расстояние будет меньше допустимого, возникает риск возгорания и порчи мебели или техники, а доступ к плите будет затруднен. При слишком большом расстоянии не гарантируется всасывание всего загрязненного воздуха, а следовательно, ухудшается эффективность его очистки. При выборе высоты установки вытяжного устройства следует учесть также рост пользователя.
Стандартное расстояние между встраиваемыми или купольными вытяжками и варочной поверхностью должно составлять 65–75 см для электрических и индукционных варочных панелей, и 75–85 см для газовых плит. Для популярных наклонных моделей расстояние от их нижнего края до варочной поверхности может быть уменьшено до 35–45 см для электрических и индукционных устройств и до 55–65 см для газовых.
Что касается высоты самой вытяжки, то все устройства принято делить на:
- низкие — высотой от 10 до 49 см;
- стандартные — высотой от 40 до 90 см;
- высокие — от 90 до 125–130 см.
К низким относятся островные или настенные, а также встраиваемые модели. Стандартные вытяжки — самые распространенные, они включают модели любого вида, за исключением встраиваемых — купольные, каминные, островные, подвесные, наклонные и угловые. Такие устройства могут устанавливаться в помещениях любой площади. К высоким относятся, как правило, купольные, каминные, наклонные модели — все они устанавливаются в просторных кухнях-столовых с высокими потолками и становятся заметным элементом обстановки.

Ширина вытяжки — один из важнейших факторов, влияющих на выбор модели. Именно от правильно подобранной по ширине вытяжки зависит качество очистки воздуха и эффективность ликвидации всех загрязнений — частиц жира, продуктов горения, запахов, водяных паров.
По общепринятым правилам ширина прибора должна быть либо равна ширине варочной панели, либо немного превышать ее. При этом следует учитывать не размер купола устройства, который может быть достаточно большим, а непосредственно рабочую поверхность, отвечающую за всасывание загрязненного воздуха. Вытяжка должна размещаться строго по центру варочной поверхности. Если ширина вытяжки будет меньше, чем у варочной поверхности, или она будет смещена относительно центра плиты, то нельзя гарантировать устранение всех загрязнений. Если же ширина вытяжки будет намного больше, это приведет только к излишним затратам электроэнергии.
Стандартная ширина кухонных вытяжек может составлять 30 см, 45 см, 50 см, 60 см, 80 см, 90 см, 100 см и 120 см в соответствии со стандартными габаритами варочных панелей. Самыми востребованными являются устройства на 60 см, которые устанавливаются над стандартной поверхностью с четырьмя зонами нагрева.
Вытяжки шириной 30 и 45 см будут соответствовать узким варочным панелям на две или три конфорки. Вытяжки шириной 90, 100, 120 см представлены у производителей в меньшем количестве — эти мощные устройства могут монтироваться над большими варочными панелями на пять или шесть зон нагрева, а также над профессиональными и полупрофессиональными плитами и варочными центрами.
Второй параметр, которым придется руководствоваться при подборе ширины вытяжки — габариты кухни и конкретно размеры кухонной мебели, рядом с которой будет размещаться вытяжка.

Глубина вытяжки — не менее важная характеристика для выбора модели, чем ее ширина, поскольку от нее также зависит площадь рабочей втягивающей поверхности. Чем лучше площадь поверхности соответствует площади варочной панели, тем эффективнее будут устраняться загрязнения воздуха, возникающие в процессе приготовления пищи — частицы сажи, капли жира, водяные испарения, а также неприятные запахи.
При этом необходимо иметь в виду тип вытяжки. Так, из-за специфики конструкции глубина наклонных и настенных приборов не имеет большого значения. Учитывать этот параметр необходимо, если пользователь выбирает купольную, каминную, угловую, встраиваемую или островную модель. Глубина рабочей поверхности всасывания в этом случае должна быть равна глубине варочной панели или несколько превышать ее. Стоит помнить, что у больших купольных или угловых моделей размеры корпуса могут намного превышать размеры варочной панели.
Для удобства пользователя следует выбирать вытяжку так, чтобы глубина даже самого большого купола не превышала глубину столешницы. У большинства современных купольных моделей глубина точно равна ширине, поскольку и стандартные варочные поверхности чаще всего имеют квадратную форму. Это значит, что вытяжка должна располагаться точно над поверхностью плиты, так, чтобы их оси совпадали. Стандартные размеры глубины таким образом могут составлять 30, 45, 50, 60, 80, 90, 100, 120 см.
У многих встраиваемых моделей глубина может регулироваться, а рабочая всасывающая поверхность — увеличиваться благодаря выдвижному козырьку, но габариты корпуса такой вытяжки должны соответствовать размерам подвесного шкафа. Выбирать основные размеры вытяжки с соблюдением всех требований эффективности и безопасности работы следует также не в ущерб общему дизайну помещения.

Воздуховод — необходимая составляющая любой вытяжки, работающей в режиме отвода воздуха. Он представляет собой трубу, соединяющую вытяжку с системой вентиляции, по которой загрязненный воздух отводится наружу из помещения, заменяясь при том чистым воздухом. Диаметр отверстия для соединения корпуса с отводом стандартно составляет 120 или 150 мм, при этом в комплекте с вытяжкой часто поставляются переходники для смены размера.
Современные воздуховоды изготавливаются из различных материалов:
- безопасного, прочного и стойкого к механическим повреждениям пластика;
- недорогого, гибкого и удобного в установке гофрированного алюминия или реже стали — из эстетических соображений эти воздуховоды размещают в коробе из пластика, металла, дерева или гипсокартона.
Диаметр самого воздуховода необходимо рассчитывать заранее, так как отсутствие герметичного крепления отрицательно влияет на эффективность очистки воздуха. Для качественной работы вытяжки и снижения уровня шума диаметр воздуховода должен быть совпадать или немного превышать диаметр вывода вытяжки. Круглые воздуховоды — самые распространенные. Как правило, в кухнях используются модели диаметром от 8 до 30 см, в большинстве моделей диаметр воздуховода составляет 18 см и 20 см. Реже используются прямоугольные и плоские воздуховоды, которые требуют специального крепежа.
Режимы и функции

Отвод — воздух засасывается в вентиляцию принудительно. Таким образом удаляются запахи, излишняя влага, частицы жира, выделяющиеся при готовке.
Циркуляция — воздух проходит через угольные и жироулавливающие фильтры, очищается и возвращается в комнату. Для активации этого режима в большинстве моделей нужно устанавливать угольный фильтр отдельно.

Количество скоростей — один из значимых параметров, влияющих на выбор вытяжки для кухни. Чем точнее можно регулировать работу вентилятора, тем эффективнее будет очистка воздуха в помещении. Точечная регулировка скорости способствует также экономии электроэнергии, влияет на уровень шума и комфорт пользователя.
Стандартное количество скоростей у большинства моделей — три: низкая, средняя и высокая. Низкая скорость всасывания используется, если на варочной панели включена одна конфорка и готовится одно блюдо. Средняя скорость выбирается, если используются две конфорки, а также при жарке на сковородке. И наконец, самая высокая скорость используется при сильном загрязнении воздуха, которое возникает при готовке на трех-четырех конфорках или при интенсивном жарении без крышки. Для экстренных случаев очень сильного задымления предназначается интенсивный режим. Максимальное число скоростей в современных вытяжках увеличивается до пяти или шести.
Выбор скорости работы производится при помощи кнопок, слайдеров или сенсоров панели управления, посредством пульта ДУ, а при удаленном управлении — при помощи специального приложения на смартфоне.
Фильтрация

Жироулавливающий — задерживают загрязнения, крупные частицы, защищая таким образом внутреннее устройство. Если вытяжка работает в режиме рециркуляции, то этот фильтр — одна из ступеней очистки воздуха. Заранее установлен практически во всех вытяжках, не требует постоянной замены.
Угольный — необходим для циркуляции, так как убирает запахи. В большинстве моделей заранее не установлен, приобретается отдельно. Представляет собой пластиковую шайбу, заполненную активированным углем, или тканевую пластину, пропитанную теми же веществами. Требуют регулярной замены.

Все современные вытяжки оборудованы системой фильтров, обеспечивающей очистку воздуха и защиту двигателя от капель жира, водяных паров, частиц сажи и других загрязнений. Большинство вытяжек комплектуется сменным жироулавливающим фильтром, который представляет собой конструкцию из рамки со вставленными в нее слоями металлической сетки — как правило, алюминиевой или стальной. Обычно устанавливают 1 или 2 штуки, реже 3 или 4.
Частота очистки фильтров определяется качеством прибора, а также интенсивностью приготовления пищи и следовательно — использования вытяжки. Для очистки жироулавливающий фильтр достаточно промыть под струей теплой воды; некоторые модели пригодны для мытья в посудомоечной машине.
В вытяжках, которые способны работать в режиме рециркуляции, необходима установка еще одного типа фильтров — с активированным углем для более тонкой очистки воздуха и устранения неприятных запахов, которые могут возникать в процессе приготовления. Выпускается несколько типов угольных фильтров, в том числе тканевые и кассетные. В большинстве своем они являются одноразовыми (со сроком службы около полугода), однако ряд производителей представил устройства с многоразовыми угольными фильтрами. Как правило, этот вид фильтров необходимо приобретать дополнительно. Чаще всего требуется также 1 или 2 штуки.
Дизайн

Выбор цвета кухонной вытяжки достаточно сложен, ведь производители предлагают буквально всю палитру оттенков, включая самые необычные. Однако чаще всего цвет вытяжки выбирается, исходя из общего стиля и расцветки кухонной мебели и техники. Нередко решающим фактором при выборе цвета становится не только тип, но и материал изготовления. Единое цветовое решение — самый популярный и несложный вариант дизайна. Большие купольные, каминные и угловые вытяжки могут также контрастировать с общим фоном, становясь таким образом эффектной деталью обстановки.
Наиболее распространенными остаются универсальные цвета — черный и белый. Не менее востребованы спокойные оттенки — например, цвет слоновой кости, кремовый, коричневый, цвет нержавеющей стали.
Самыми популярными остаются черные вытяжки. Черный цвет отлично сочетается с любыми другими, на нем не так заметны загрязнения. Кроме того, черные тона можно вписать в кухню любого стиля, от хай-тек до классического. В черном цвете изготавливают все типы вытяжек — купольные, наклонные, настенные, подвесные, островные, Т-образные. Особенно интересны и разнообразны модели из закаленного стекла, которое удачно гармонирует со стеклокерамическими варочными панелями.
Еще один универсальный цвет — белый, он особенно хорошо подходит для небольших кухонь, так как зрительно способен расширить пространство. На белом фона меньше заметны капли воды и даже частицы жира. В классическом или античном белом выполняются купольные и каминные вытяжки, угловые и встраиваемые модели. Светлые кремовые тона, оттенок слоновой кости — наиболее распространенный вариант для больших вытяжек с окантовкой из натурального дерева.
Еще один распространенный вариант — цвет нержавеющей стали. В любой кухне можно найти технику подобного оттенка, включая варочные панели, так что вытяжка сможет сочетаться с ними. Нержавейка нетребовательна в уходе, для ее очистки можно использовать любые средства. В числе ее достоинств — прочность и устойчивость к коррозии и высоким температурам.
Вытяжки необычных цветов привносят в кухню оттенок индивидуальности.
Производители предлагают модели любых оттенков — не только красные, зеленые, синие, оранжевые, но и цвета золота, бронзы или меди, а также модели с оригинальным рисунком. Устанавливать такую вытяжку стоит в кухне, выполненной в нейтральных цветах.

Встроенное освещение — функция, которая присутствует практически во всех современных вытяжках. Центрального освещения часто недостаточно для хорошего обзора рабочей зоны, особенно если над ней установлен подвесной шкаф. Интегрированные в вытяжку лампы позволяют готовить с комфортом, не напрягая зрение, их можно включать независимо от использования самой вытяжки.
Производители оснащают свои изделия лампами всех типов. Наиболее часто используются светодиодные. Их применение связано с целым рядом преимуществ. Прежде всего, светодиодные лампы отличаются очень низким энергопотреблением, которое составляет всего 2-5 Вт, они не нагреваются даже при длительном использовании, не реагируют на перепады напряжения и отличаются прочностью и долговечностью: такие лампы способны работать без замены несколько лет. Подсветка при этом получается намного более яркой, чем при использовании галогенных светильников и, тем более, ламп накаливания. Светодиоды испускают свет, безвредный для глаз, позволяют сохранить естественные цвета продуктов. У ряда производителей — например, Miele или Pando — для подсветки используются светодиодные ленты, причем интенсивность освещения можно регулировать.
Лампы накаливания используются обычно в купольных вытяжках классического стиля для создания ретро-атмосферы — этому способствует привычный теплый цвет. Такие лампы привлекают также низкими ценами, однако сильно нагреваются и требуют достаточно частой замены.
Галогенные лампы — более совершенный вариант ламп накаливания: в них используется спираль из вольфрама, а в стеклянной колбе находится газ с примесью галогенов. За счет этого стекло не темнеет, а нить накаливания может восстанавливаться в процессе работы, так что срок службы значительно увеличивается и может составить год и более.
Неоновые лампы представляют собой стеклянную колбу, заполненную неоном или смесью газов. Они отличаются устойчивостью к высоким температурам, что немаловажно для кухонной вытяжки, а также долговечностью — срок их службы может составить до 1000 часов. Еще одно их преимущество — очень малое потребление электроэнергии. Неоновые лампы позволяют создавать подсветку разного типа — как холодную, так и теплую для вытяжек в разных стилях. Мягкое рассеянное освещение не создает дискомфорта и позволяет получить интересные визуальные эффекты.

Количество ламп, которые используются для подсветки рабочей зоны в современных вытяжках, определяется целым рядом факторов, в числе которых тип вытяжки, ее габариты, вид самих ламп. Чаще всего для освещения в вытяжках используются светодиодные лампы и ленты, лампы накаливания, галогенные и неоновые, а также люминесцентные светильники.
В моделях, которые крепятся к стене, включая наклонные и встраиваемые в подвесной шкаф, обычно используются две лампы, расположенные слева и справа. Такого освещения достаточно, чтобы пользователь чувствовал себя комфортно во время подготовки продуктов и приготовления пищи. Выбирая модель, необходимо обратить внимание также на угол наклона ламп, и уточнить, не перекрывается ли световой поток рядом стоящей мебелью, техникой, элементами самой вытяжки.
В небольших недорогих моделях, особенно встраиваемых, для освещения может использоваться одна лампа — например, галогенная увеличенной мощности. Потолочные и островные вытяжки обычно располагаются над кухонным островом, к которому имеется доступ со всех сторон. В этом случае необходима более яркая подсветка — такие модели могут оснащаться тремя или четырьмя лампами.

Мощность ламп освещения в вытяжке — один из факторов, определяющих, насколько комфортно будет пользоваться подсветкой при приготовлении пищи. Правильный подбор ламп позволяет готовить, не напрягая зрение, использовать освещение независимо от работы самой вытяжки.
Наиболее часто в качестве подсветки применяются светодиодные лампы, которые отличаются очень низким энергопотреблением, составляющим всего 2-5 Вт. У ряда производителей для подсветки используются светодиодные ленты — мощность одного метра такой ленты зависит от количества светодиодов и может составить от 5 до 20 Вт.
Лампы накаливания Е14 мощностью 40 Вт устанавливаются обычно в купольных вытяжках классического стиля. Галогенные лампы — более совершенный и долговечный вариант ламп накаливания: ими оснащены многие встраиваемые, островные, наклонные и Т-образные вытяжки. Для освещения обычно используются галогеновые лампы с цоколем G4 мощностью 20 или реже 40 Вт.
Некоторые модели оснащаются флуоресцентными лампами мощностью от 9 до 13 Вт — экономичными и яркими. Неоновые лампы отличаются устойчивостью к высоким температурам и долговечностью — срок их службы может составить до 1000 часов. Мощность их обычно составляет около 20 Вт.

Фурнитура в современных вытяжках выполняет сразу несколько функций. Она служит для отделки изделия, подчеркивает его дизайн, позволяет создать единое цельное впечатление.
К фурнитуре относятся элементы, находящиеся на панели управления, многочисленные ручки для выдвижения или изменения высоты расположения вытяжек, декоративные решетки и трубы. Иногда специалисты относят к фурнитуре и сменные жироулавливающие фильтры для грубой очистки воздуха, угольные фильтры тонкой очистки для удаления неприятных запахов, заслонки для предупреждения обратной тяги, короба и гофрированные трубы для воздуховодов.
Внешний вид и состав фурнитуры определяется прежде всего типом вытяжки. Так, большие купольные модели в классическом, кантри и других подобных стилях оснащаются декоративными элементами из натурального дерева, окрашенного или не тонированного. Деревянная отделка может быть украшена резьбой. В качестве дополнительного элемента могут выступать небольшие полочки для кухонных мелочей, а также стильные аналоговые часы.
Не менее эффектно выглядит фурнитура из меди, латуни и бронзы. Ею оформляются модели не только в деревенском, ретро, прованс, средиземноморском и других похожих стилях, но и современные модели в стиле лофт или даже хай-тек. Латунные и бронзовые решетки, поворотные переключатели, ручки-рейлинги и окантовки удобны в очистке, долговечны, отличаются прочностью и устойчивостью к высоким температурам. Модели в классическом стиле могут оснащаться также металлической фурнитурой под золото и серебро.
Фурнитура из нержавеющей стали — принадлежность вытяжек современного дизайна: наклонных, островных, потолочных. Панели, декоративные фильтры и решетки хорошо сочетаются со стеклом всех оттенков, а также натуральным камнем.
Управление

Тип управления вытяжки — один из параметров, определяющих выбор модели. Производители предлагают устройства всех видов — от самых простых с механическим управлением до высокотехнологичных приборов с сенсорным управлением.
Механическое управление — удобное и надежное, оно является одним из самых востребованных. Панель управления в этом случае оснащается несколькими кнопками — в том числе включения вытяжки, выбора одной из скоростей работы и интенсивного режима, а также включения освещения рабочей зоны. В некоторых случаях кнопка включения заменяется кнопкой выбора первой скорости. Кнопки могут иметь различную форму и служить элементом дизайна; часто они снабжаются подсветкой. Модели с механическим управлением отличаются невысокими ценами, однако не слишком удобны в очистке, так как под кнопки быстро забивается грязь.
Слайдерное управление осуществляется при помощи ползунков-слайдеров: режим работы, активация подсветки и другие опции активируются перемещением ползунка. В простейшем случае он может фиксироваться в двух-трех положениях, в более продвинутых моделях могут использоваться слайдеры с плавной регулировкой скорости работы и освещения, что не только удобно для пользователя, но и позволяет снизить нагрузку на двигатель.
Сенсорное управление сочетает эффективность, простоту в освоении и удобство в уходе. Все функции активируются одним прикосновением или движением пальца. Гладкая сенсорная панель управления стильно выглядит, ее можно очистить буквально одним движением. Сенсорные панели позволяют добавить дополнительные опции — например, таймер, интервальный режим или пониженный уровень шума. На дисплее отображается вся актуальная информация, в том числе о необходимости замены или очистки фильтров.

Состав и форма элементов управления вытяжкой определяются ее типом и видом управления. Зачастую они не только предназначаются для задания параметров работы, но и представляют собой часть декора.
Наиболее распространенным элементом управления являются кнопки — ими оснащаются устройства с механическим управлением. Кнопки можно увидеть у вытяжек всех типов, от простых встраиваемых до дизайнерских подвесных, островных или наклонных. Количество кнопок зависит от набора функций: в простейшем случае достаточно всего трех кнопок — двух для переключения скоростей и одной для включения освещения. Как правило, они имеют круглую форму, однако производители предлагают устройства с квадратными и даже треугольными кнопками. В больших купольных вытяжках кнопки могут изготавливаться из меди, бронзы или латуни, а моделях современного дизайна — оснащаться подсветкой.
Ползунки-слайдеры — еще один элемент управления, более удобный в очистке, чем кнопки. Перемещением ползунка активируются все функции, в том числе скорость всасывания и включение подсветки. В простом варианте слайдер может фиксироваться в двух-трех положениях, а более современные модели оснащаются слайдерами с плавной регулировкой скорости и освещения, что увеличивает удобство использования и позволяет снизить нагрузку на двигатель.
Сенсорная панель управления с дисплеем — наиболее современный и эффективный тип управления. Ей не оснащаются только модели в стиле ретро, поскольку сенсорное управление не подходит к их дизайну, и самые бюджетные модели настенных вытяжек. Все функции активируются одним прикосновением к сенсорной кнопке или движением пальца по сенсорному слайдеру. Гладкая панель стильно выглядит и очень удобна в очистке. На ней могут располагаться кнопки для активации дополнительных опций.
Дополнительные характеристики
Рекомендованная площадь кухни, кв.м: 40
Технические характеристики

Мощность мотора вытяжки — достаточно важный параметр, который необходимо учитывать при выборе модели. Очень часто пользователи путают мощность мотора и производительность вытяжки, которую в обиходе также называют мощностью. Однако в любой инструкции или паспорте устройства эти два параметра указываются отдельно: мощность двигателя в кВт, то есть количество электроэнергии, используемой в единицу времени, и производительность в м3/час — то есть объем загрязненного воздуха, который вытяжка способна очистить за час работы.
Мощность мотора вытяжки не всегда напрямую влияет на производительность устройства, но от нее зависит энергопотребление — чем мощнее вытяжка, тем оно больше. Вытяжки отличает достаточно невысокая мощность, которая может варьироваться в диапазоне от 25 до 600 Вт, так что допускается их подключение к обычным розеткам. Самостоятельно пользователь может рассчитать, сколько электроэнергии будет потреблять конкретная вытяжка, исходя из ее паспортных данных, а также планируемого времени работы в день. Мощность двигателя влияет также на уровень шума, но и здесь зависимость не прямая: производители оснащают устройства системами шумоподавления и специальными вентиляторами.

Максимальная производительность вытяжки — важнейший критерий выбора модели наряду с ее типом и размерами. Именно от него зависит, насколько эффективно то или иное устройство справится с очисткой воздуха в вашей кухне. Производительность на каждой скорости (или хотя бы на максимальной) должна указываться в техническом паспорте устройства, а пользователь путем несложных расчетов может определить, подходит ли модель для его условий.
Чтобы рассчитать требуемую производительность, необходимо умножить площадь помещения в кв. м на высоту потолков и на коэффициент 12 — количество циклов обновления воздуха в час согласно санитарным нормам. Эта простейшая формула и даст значение максимальной производительности вытяжки для данного помещения. Имеются также уточненные формулы, учитывающие тип варочной панели, режим работы вытяжки и другие параметры.
Фирмы-изготовители предлагают модели минимальной производительностью от 180–200 м3/час, максимальная же в самых мощных моделях может достигать 2000 м3/час, однако для обычных квартир она будет излишней. Так, вытяжки максимальной производительностью 950 м3/час достаточно для эффективной очистки помещения площадью около 30 кв. м.

Класс энергопотребления вытяжки — значимая характеристика, на которую стоит обратить внимание при выборе модели. Производители предлагают устройства с высоким классом энергоэффективности, применяя инновационные технологии и экономичные источники освещения, так что даже самые мощные вытяжки не отличаются высоким энергопотреблением.
С 2014 года все они снабжаются энергетическими наклейками, где отображается класс энергоэффективности устройства от A до G. Модели класса G в настоящее время практически не выпускаются, однако бюджетные вытяжки невысокой производительности могут иметь классы энергоэффективности В, С, D, E и потреблять до 250 Вт за час работы.
В лучших моделях — например, вытяжках Elica, Falmec, Faber и других — используется ряд уникальных технологий, направленных на снижение энергопотребления. Повышению энергоэффективности способствует и применение экономичных светодиодных ламп. Например, в моделях Elica класса А энергопотребление снижено на 50% за счет использования технологии всасывания Synairgy. Устройствам Faber с мотором Evo Diffuser присвоен класс энергопотребления А++: они потребляют на 85% меньше электроэнергии, чем обычные вытяжки.
Торговая марка Maunfeld имеет относительно недавнюю историю: она зарегистрирована в 1998 году в Великобритании, в городе Мидлсбро, где было организовано производство кухонных вытяжек и систем очистки воздуха. Сейчас производство бытовой техники размещается на крупных заводах, расположенных в Польше, Франции, Турции, Китае, Словакии; ассортимент значительно расширился и включает духовые шкафы, варочные поверхности, микроволновые печи, посудомоечные и стиральные машины и малую бытовую технику — например, кофемашины и кухонные комбайны.
Дизайн всех изделий «Маунфилд» по-прежнему разрабатывается в исследовательской лаборатории в Великобритании. Особое место в ассортименте компании по традиции занимают вытяжки всех ценовых категорий — от экономичных до премиальных. Не менее популярны варочные панели всех типов — их отличает самое высокое качество и только первоклассные комплектующие. При их изготовлении используется высокопрочная стеклокерамика EuroKera производства Франции и стекло известной германской фирмы SCHOTT, а также итальянские газовые горелки SABAF. Все изделия отличаются современным внешним видом и большим гарантийным сроком — до 3 лет.
На данный товар распространяется официальная гарантия производителя. Обслуживание в течение всего гарантийного срока осуществляется авторизованными сервисными центрами производителя в соответствии с требованиями, указанными в Законе РФ «О защите прав потребителей».
Обратите внимание: гарантийный срок и установленный производителем срок службы — это разные понятия. Изготовитель принимает на себя ответственность по устранению неисправностей, если не указано обратного.
ВАЖНО!
При получении обязательно осмотрите прибор: нет ли на нем механических повреждений, соответствует ли комплектация заявленной.
Обратите внимание:
- Есть функции:
- ‐ Интенсивный режим
- ‐ Индикатор загрязнения фильтра
- ‐ Возможность установки угольного фильтра
- ‐ Жироулавливающий фильтр пригоден для мытья в посудомоечной машине
- Ширина: меньше на 30.2 см
- Высота: меньше на 55 см
- Макс. производительность: меньше на 340 м3/ч
- Цвет: нержавеющая сталь/белое стекло
- Количество фильтров: 1
- Уровень шума на максимальной скорости: больше на 21 Дб
- Нет функций:
- ‐ Освещение рабочего места
- Высота: меньше на 80 см
- Макс. производительность: больше на 100 м3/ч
- Цвет: черный
- Уровень шума на максимальной скорости: больше на 9 Дб
- Глубина: меньше на 20 см
- Габариты (ВхШхГ): 37x90x30 см