Размеры мойки зависят от многих факторов. Прежде всего, это площадь кухни. От нее зависит и форма — в просторной кухне можно установить мойку в виде трапеции или угловую с несколькими чашами или крыльями, а в небольшой кухне поместится только компактная круглая или квадратная модель.
Еще один важный фактор — число членов семьи и их пищевые привычки. Один-два человека, привыкшие часто питаться вне дома, предпочтут небольшую мойку. Для семей с маленькими детьми или тех, где готовит часто и помногу, понадобится модель побольше, приспособленная для мытья больших сковородок, кастрюль и противней. Учитывать нужно даже, кто будет готовить, правша или левша, и подбирать крыло раковины под ведущую руку.
Самый простой вид мойки - квадратная или круглая с 1 чашей и без крыла. Другие модификации зависят от:
- Наличия крыла — дополнительной рабочей поверхности, на которую можно положить вымытые продукты, поставить посуду для сушки и т. д. Изготавливается крыло из того же материала, что и мойка.
- Количество чаш — кроме основной, может быть дополнительная, как правило, меньшего размера. Реже двухсекционные мойки изготавливают с одинаковыми чашами.
- Наличия разделочной доски, колландера — чаши со сливом воды и других приспособлений.
Среди основных параметров принято выделять:
- габариты самой мойки;
- размер чаши;
- размеры шкафа или тумбы;
- установочные размеры.
Стандартные размеры моек
Габариты мойки зависят от формы, наличия крыла и кухонной столешницы. Не рекомендуется размещать мойку вплотную к боковой стене, пеналу или холодильнику.
Ширина раковины может быть самой разной, глубина зависит от столешницы и как правило составляет 45-50 см, глубина чаши от 16 до 22 см.
Одинарные мойки - модели с одной чашей без крыла, как правило имеют квадратную или круглую форму, их габариты:
- квадратные — ширина 50-60 см см, глубина около 50 см
- круглые — диаметром 40-50 см.
Раковины с одной чашей и крылом имеют разброс по ширине - от 60 см до 80 см, глубина также 45-50 см.
Размеры двойных моек - с двумя одинаковыми чашами без крыла, чаще всего по ширине 80 - 90 см, глубина 45-50 см.
Большие кухонные мойки
Ширина таких моделей от 80 см и далее. Обычно таких размеров достигают за счет нескольких чаш, одного или двух крыльев, нестандартной формы (угловой, трапецевидной). Устанавливаются в базу от 60 до 90 см. Двойные модели (с крылом или без) подходят для большой кухни при условии, что вы много готовите.
Маленькие раковины
Узкие модели с одной чашей, глубина встраивания стандартная — 40-45 см, что соответствует размерам столешницы. Ширина при этом может быть от 20 см до 40см.
Мойки из разных материалов
Габариты раковин не зависят от материала, из которого они изготовлены. Материал влияет лишь на эксплуатационные свойства и на толщину мойки.
Из искусственного камня (композитного материала), натурального гранита, кварца. Каменные считаются жесткими — на них можно устанавливать смеситель любого веса. Размеры моек из камня зависят только от формы и ширины. Стандартно глубина равна 45-50 см (исходя из правила - раковина не устанавливается вплотную к стене и к краю столешницы), глубина чаши 18-22 см, ширина узких - 30-40 см, средних - 45-60 см, широких от 60 до 80 см.
Из керамики, в том числе с защитным покрытием. Размеры керамических моек также зависят от формы и ширины. Глубина 45-50 см, глубина чаши 18-22 см, стандартная ширина 45-60см, узкие - 30-40 см, большие от 60 до 80 см.
Из нержавеющей стали различной толщины (чем она толще, тем надежнее изделие и меньше шума производит вода). Мойки из тонкой стали требуют установки смесителя на стену или столешницу. Размеры моек из нержавейки: ширина 30-40 см у узких раковин, 45-60см для средних и 70-80 для широких моек, глубина меньше столешницы и, как правило, равна 45-50 см, высота чаши от 18 до 22 см.
Дорогие элитные модели могут быть изготовлены из стекла, стеклокерамики, меди или латуни — как, например, врезная модель из меди Restart LVR 002.
Мойки разной формы
По форме можно выделить круглые, прямоугольные, квадратные, угловые, а также более редкие модели в виде трапеции или овала.
Угловые и трапецевидные. Преобладает ширина около 90 см в соответствии с диагональю углового шкафа — примером может служить врезная модель Blanco Zia 9E на 93 см из искусственного камня Silgranit с неглубокой дополнительной чашей и крылом.


Круглые. У этих моделей достаточно указать диаметр. Стандартное значение — около 45 см, как у Blanco Rondosol и других моделей, представленных в интернет-магазине Hausdorf.
Прямоугольные. Минимальная ширина — около 20 см, как у небольшой модели Fulgor Milano P1B 2043 QU. Максимальное может достигать 120 см. Так, SMEG LG116S-2 с двумя чашами и крылом в ширину составляет 116 см. Среднее значение для прямоугольной мойки — 50-60 см.

Квадратные. Стандартная ширина — 50-60 см.

Глубина модели любой формы выбирается так, чтобы до края столешницы, как и до кухонного фартука, оставалось по 3-5 см — так легче вытирать брызги, да и одежда останется сухой. Таким образом, при стандартной глубине столешницы, равной 60 см, глубина мойки будет составлять около 50 см.
Более глубокие модели имеют нестандартную форму — например, большая Blanco Metra 9 E, или рассчитаны на нестандартную столешницу — как Blanco Panor 60 глубиной 63 см.
Стоит отметить, что форма чаши может как совпадать с формой самой раковины, так и отличаться от нее. Самой практичной считается круглая — за ней легче ухаживать, так как не нужно промывать углы, в ней возникает меньше брызг, помещается больше посуды.
Размеры чаши
Под размерами понимается расстояние между крайними точками чаши — то есть ее ширина и длина, а также глубина.
Ширина и длина меньше соответствующих габаритов мойки. Например, у круглой Franke ROL 610-41 диаметром 51 см диаметр составляет 41 см.
У овальных, квадратных, прямоугольных моделей нужно учесть, что общий размер складывается не только из чаши, но и крыла и дополнительной чаши, если они имеются. Так, у Blanco Metra 6S compact ширина основной чаши — 34 см, дополнительной — 17 см, а общая ширина составляет 78 см.

В любом случае, ширина должна выбираться так, чтобы чаши располагались в тумбе, в которой проходят трубы водопровода и канализации.
Глубина — очень важный параметр. Выбирая его, нужно учитывать размер посуды, которую предстоит мыть: противни, казаны, большие кастрюли требуют более глубокой чаши.
- Низкие — до 16 см. Например, прямоугольная Franke ETN 614 насчитывает 14 см.
- Стандартные — от 17 и выше. Наиболее частое значение — 17-23 см.
- Модели глубже 25 см встречаются редко: для мытья посуды к ним нужно низко наклоняться, что не всегда удобно. Например, Smeg LSEG860AV-2 имеет чашу 24 см.
Толщина материала принимается во внимание, если важно, насколько чаша выступает над столешницей. Керамические и каменные модели выступают сильнее и смотрятся солиднее, стальные — несколько меньше, но экономят место.
По типу установки
- Накладные — заменяющие столешницу: они накладываются на боковые стенки тумбы.
- Врезные — встраиваемые в вырез в столешнице. Они могут крепиться к ней как сверху, так и снизу.
- Интегрированные — изготовленные в том же дизайне, что и столешница, из того же материала, без бортиков и рамок.
Размеры шкафа или тумбы
Для установки раковины на кухне потребуются напольный шкаф или тумба, куда помещают все провода, трубы, сифоны, фильтры, измельчители пищевых отходов, а также дополняют их полками или контейнерами для хранения.
Шкаф или тумба под мойку изготавливается в едином дизайне и имеет ту же высоту, что и другая мебель. Часто их делают более прочным, так как мойка из камня или керамики имеет значительный вес.

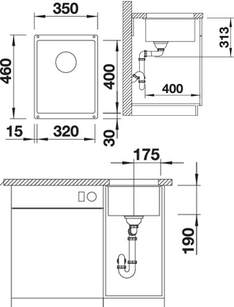
Самый важный показатель при выборе шкафа или тумбы — расстояние между их боковыми стенками. Сверху между ними располагаются чаша или несколько чаш. Внизу, внутри шкафа — все канализационное и водопроводное оборудование.
- Для накладной модели расстояние между боковыми стенками шкафа должно совпадать с шириной самой мойки.
- Для врезных этот размер, как правило, указывается в схеме встраивания. Существует несколько стандартных значений ширины шкафа — 45, 60, 70 и 90 см.
Стандартная глубина кухонной тумбы, как и другой кухонной мебели, составляет около 60 см. Большинство моделей выпускается с учетом этих значений.
Стандартная высота кухонной мебели составляет 82-85 см, но люди, рост которых выше или ниже среднего, часто вынуждены заказывать тумбы для мойки по индивидуальным меркам.
Размеры отверстия
Под установочными размерами или установочным проемом понимается величина отверстия в столешнице, в которое предстоит установить врезную мойку. Установочные размеры больше, чем габариты чаши, но меньше, чем габариты самой мойки. Они указываются в инструкции по встраиванию.

К некоторым моделям, например, Blanco Tipo 8 Compact, прилагается шаблон для врезки. Они могут устанавливаться в вырез сверху либо снизу. В первом случае отверстие вырезается для всей мойки, включая крыло, если оно имеется. Во втором — отверстие вырезается по форме чаши или нескольких чаш.
Для этой модели размер отверстия: 76.2х48.2 см.

Как правило, столешницы и мойки с нижним размещением изготавливают из искусственного или натурального камня, так как открытый бортик столешницы постоянно подвергается воздействию воды.
Производители бытовой техники предлагают покупателям огромное количество моделей всех ценовых категорий. Известные итальянские и немецкие бренды Blanco, Franke, Fulgor Milano, Kuppersbusch, Restart, Smeg широко представлены в магазине «Хаусдорф». У нас вы вы можете выбрать мойку любого типа и размера из любых материалов. На все изделия предоставляется гарантия, а большинство моделей мы доставляем и устанавливает бесплатно.